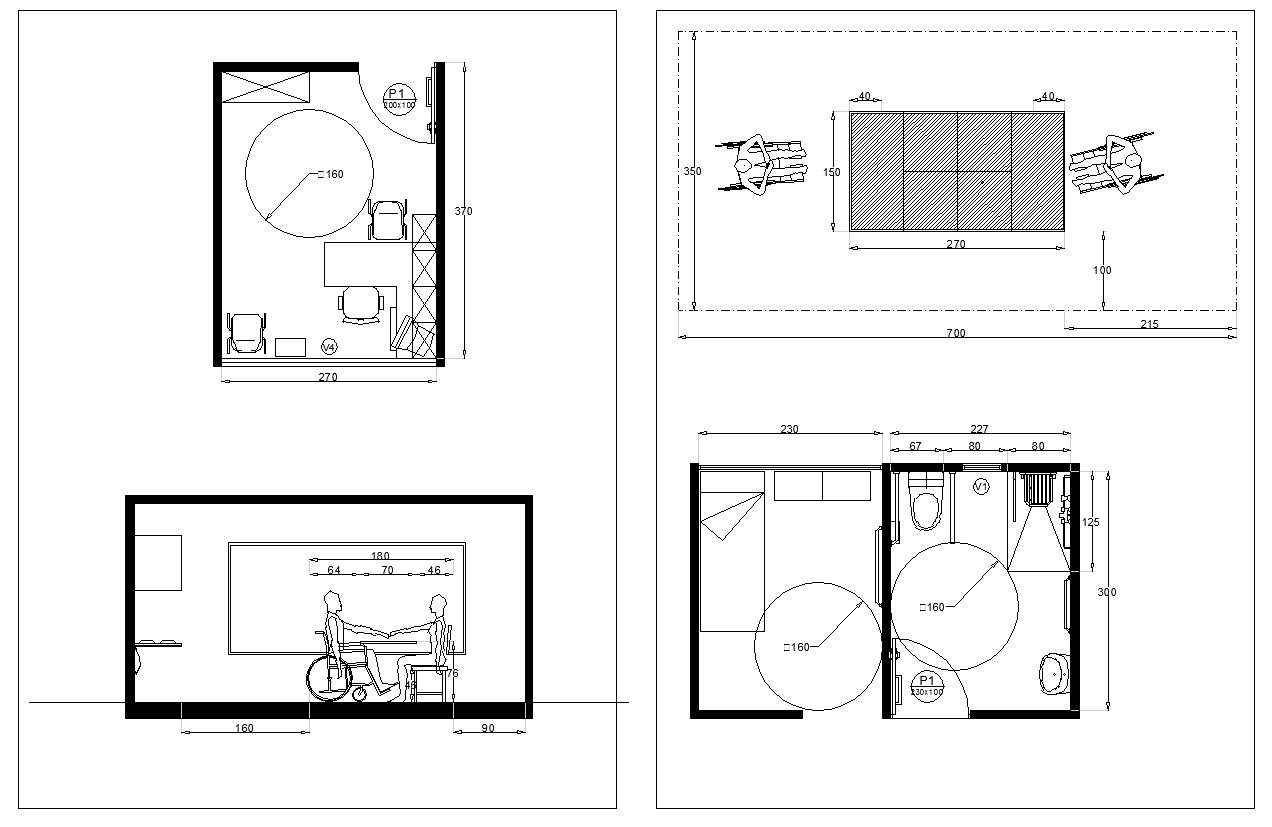
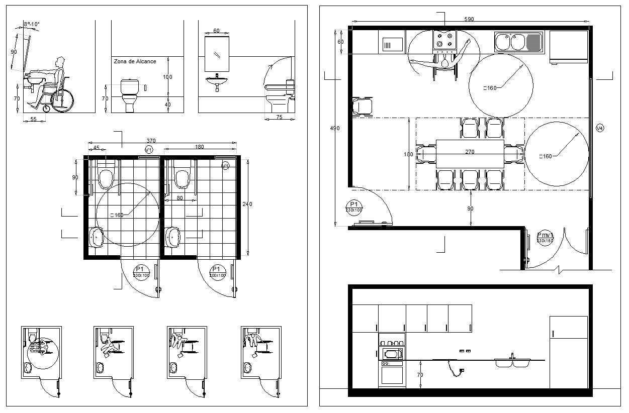
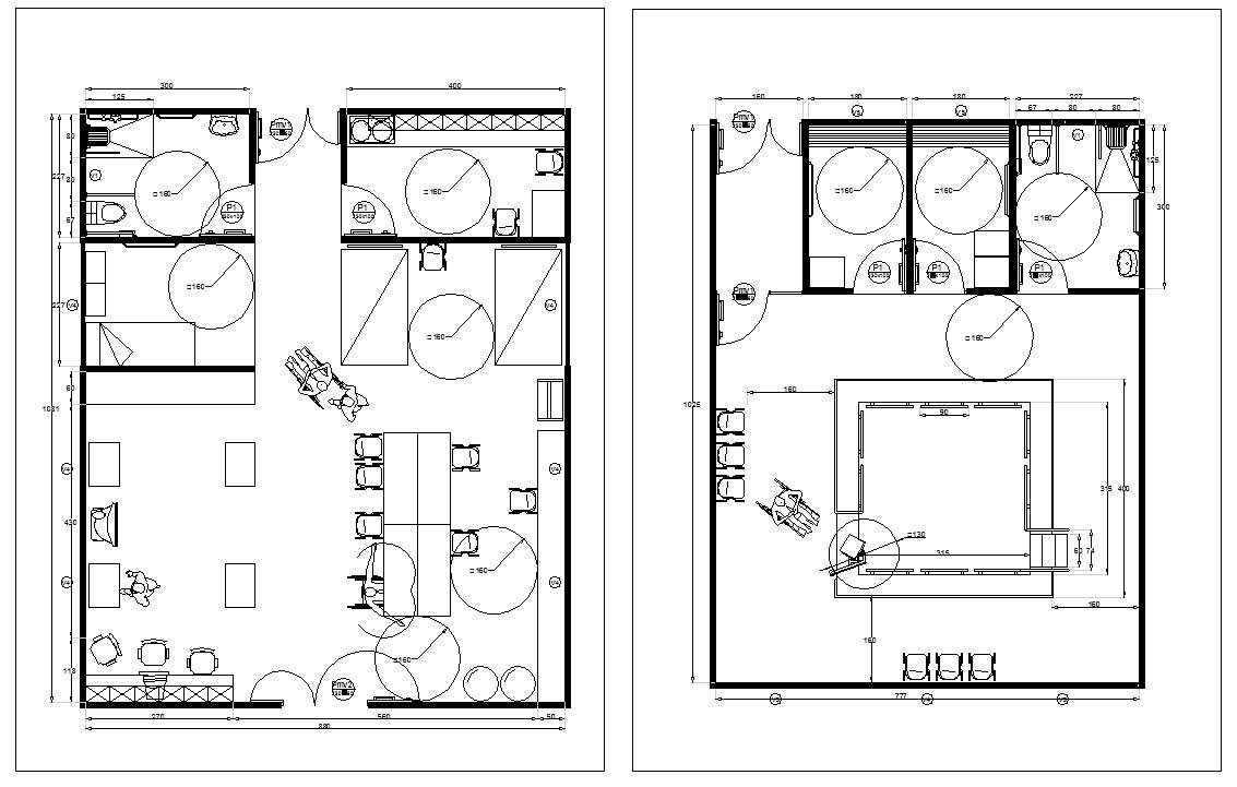
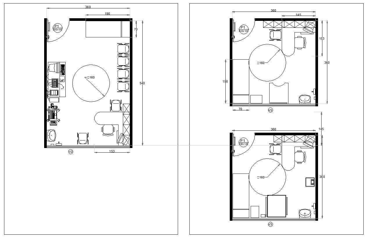
Accessibility facilities V4
$4.99
Includes the following CAD symbols:
Accessibility facilities,blocks,details,design
The .DWG files in this CAD library are compatible back to AutoCAD 2000.
These AutoCAD block libraries are available to purchase and Download NOW!

Description
Accessibility facilities,blocks,details,design





